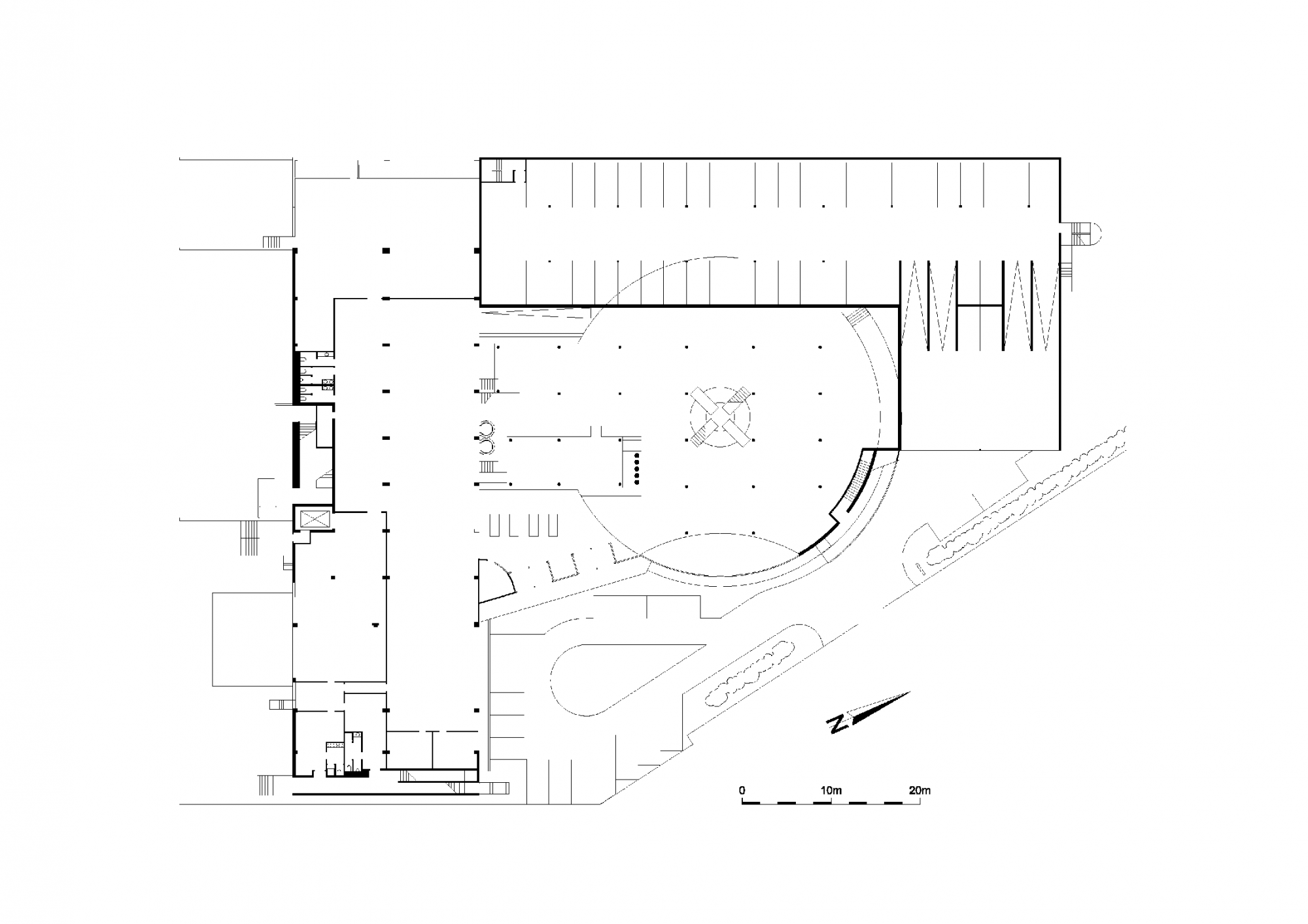
SPORTHAUS EYBL
2331 Vösendorf
1994
TEXTFOTOSPLÄNE